Pomona:
Sounds of Silence

Softwares: Revit Architecture, Photoshop
Building type: Small intervention
Project duration: 2 weeks
Location: Pomona, Queensland

The node aims to celebrate and enhance Pomona’s best qualities: silence, tranquility, and its close connection to nature - and the best way to enhance silence, is to introduce sound.

While the Majestic Theatre - Pomona’s most prominent building disconnect sound from sight through silent films, this node does the opposite. Anticipation builds as visitors approach the node, drawn in by the amplified sounds of insects - curious as to where the sound originates from, as well as the intriguing shape of the structure. Entering the space inside, visitors are greeted with litte insectariums, each containing different insects: cicadas, crickets, and grasshoppers, the sound they make amplified in real time. Awaiting visitors under the cool shade are hammocks, beckoning for them to climb in and close their eyes as the

insects drown out all background noises. This allow the visitors to enjoy Pomona for what it is: a quiet place, a place to escape, relax and meditate, to further feel a close proximity to its surrounding environment.

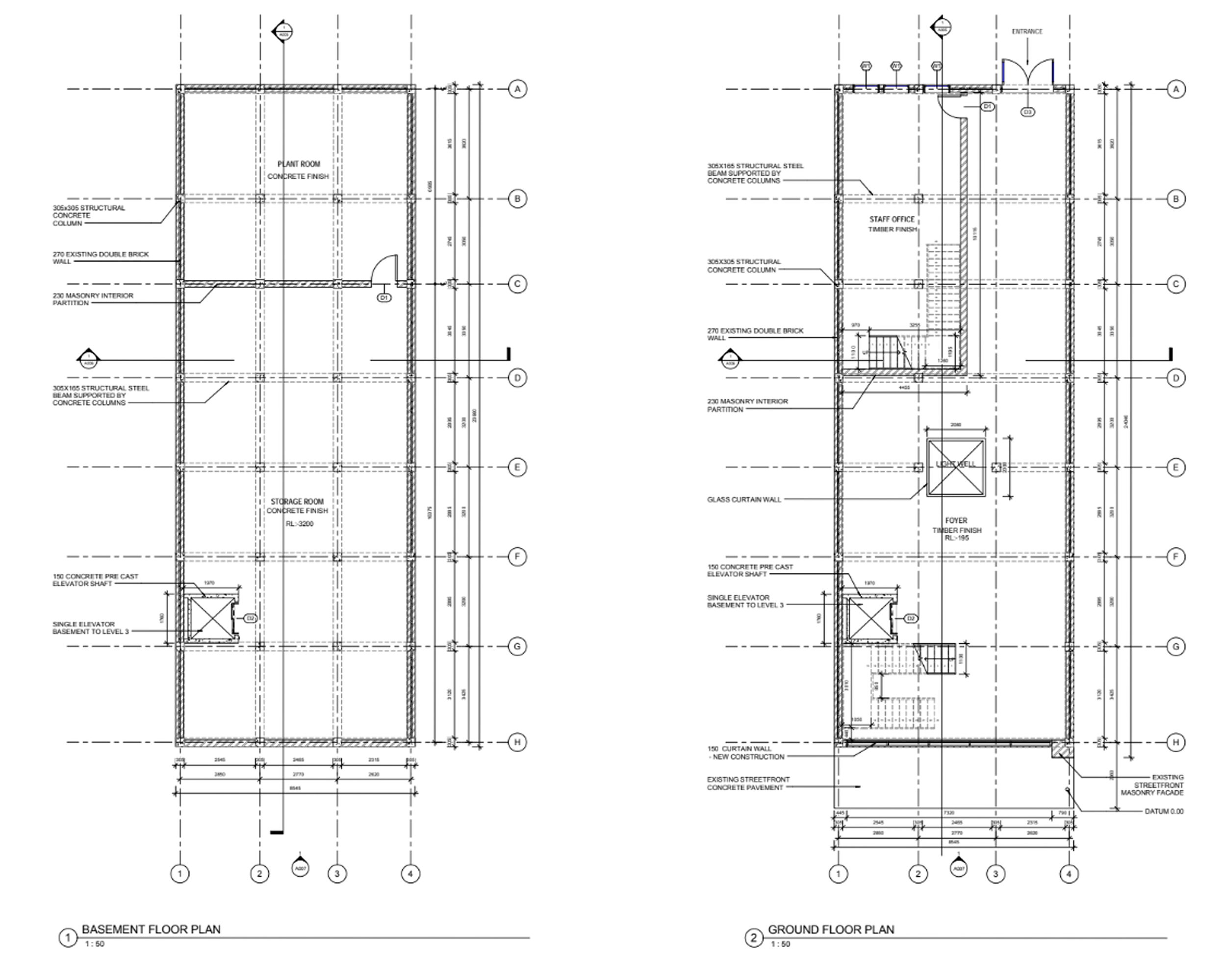
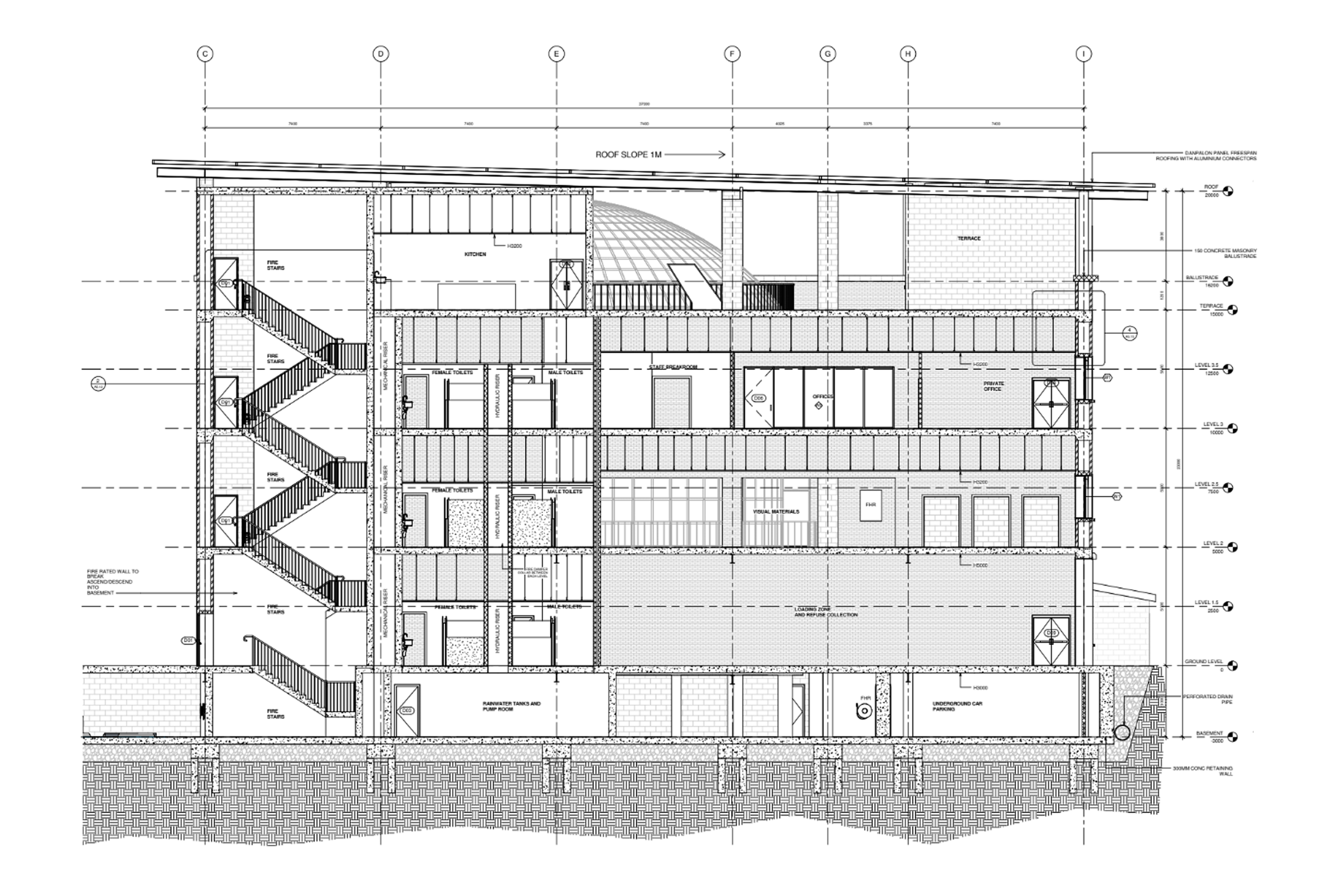
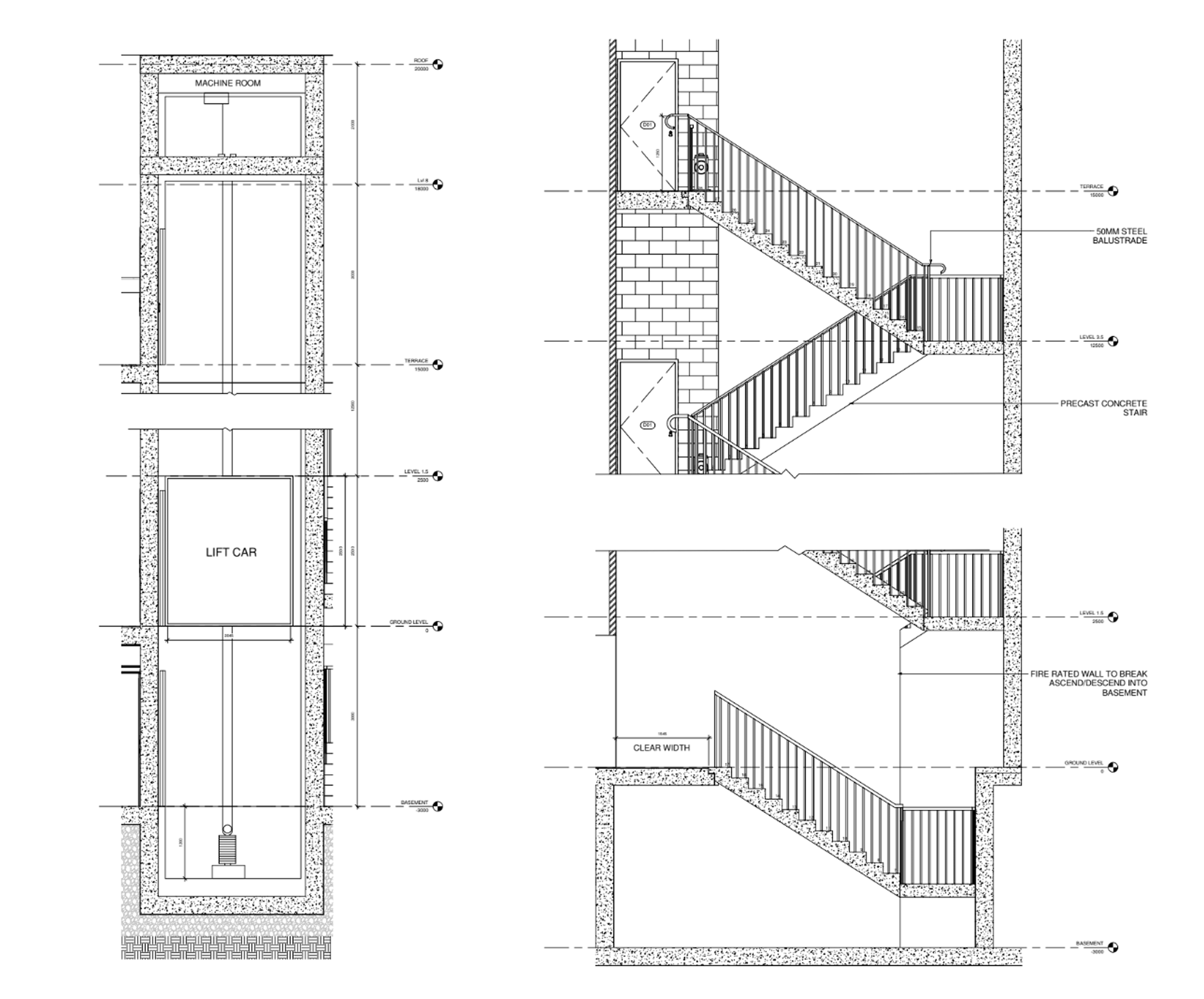
Australian Consulate

Softwares: Revit Architecture, Photoshop
Building type: Hybrid (Commercial + Residential)
Project duration: 5 weeks
Location: Venice, Italy

The brief calls for an Australian Consulate in the city of Venice, where the consul lives with his or her family - the same building is to operate as a government’s office, hence a clear separation between public and private needs to be met.

Located on a narrow site with limited buildable area, this consulate aims to produce a feeling of light and spaciousness for its ocupants. Its’ goals are simple, yet important - to steer away from the dull and monotonous feeling often associated with most government ofice buildings, evoke a feeling safety and comfort, represent what is Australian, respect the surrounding Venetian architecture, and function well not just as a consulate, but for a family to grow and thrive in.

Technical Drawings